您好,欢迎光临连云港高达电力设备有限公司!电动滤水器,自动加药装置,滤水器厂家,胶球清洗装置,首选高达电力!
产品中心 > 胶球清洗装置     您所在的位置:首页 > 产品中心 > 胶球清洗装置
手动胶球清洗装置


一、概述
     胶球清洗系统是汽轮发电机组在运行中对凝汽器冷却管进行有效清洗的******设备。该系统正常投运与否直接影响凝汽器冷却管的传热效率,进而影响机组经济性。SAN-2型胶球清洗系统具有设计结构新颖合理、操作方便、胶球回收率高等特点。
二、胶球清洗系统流程图
 

 
三、胶球清洗装置的组成及部件说明
1、 收球网:收球网是胶球清洗系统中的关键设备,它安装于凝汽器出水管段上,它的作用是把胶球从冷却水中分离出来,且必须具备不漏球、不卡球的性能,球被回收后的栅网板可以转动;在胶球装置投运时,网板处于收球位置,在不投运清洗装置时,该栅网板可以旋转到与水流方向一致的位置;并设有反冲角度。既减少水阻又起到清除栅板上杂物的作用。网板的转动定位由电动执行机构执行(小型收球网为手动控制)。我厂开发研制的新型SAN-2系列收球网是目前*********的第三代更新换代产品。它具有结构设计新颖、合理;操作方便;胶球回收率高(≥95%以上)等特点。
工作原理:新型SAN-2系列收球网是在相应的管道中设置了一个/面型栅格网,上部为进水端,网板将整个管道截面全部遮挡,收球工作由此开始。/面型栅格网的单片网板由转轴转动,在非运行工况时网板可被旋转到一定角度,形成与水流平行的H型结构。H型结构使水流对网板进行反冲洗,可清除网上杂物及减小水阻。在投球运行时将网板转回到原来的/型结构位置上。主要型式有手动(小管径)和电动(大管径)两种供选用。我公司对循环水管道大于800的将收球网设计为A型,A型栅板网有两根轴传动,操作轻松。
2、 装球室:装球室是胶球清洗装置中用于放球、取球、存储和观察胶球循环情况的装置;它由外壳、漏斗、切换阀等组成,并配有观察窗、放气、放水阀门等。
3、 胶球泵:它是胶球清洗系统中使胶球进行不断循环的动力设备。该泵是一个专用的无障碍离心泵,其叶轮由两片构成管状通道。它具有不堵球、不切球和对胶球磨损小等优点。
4、分汇器:分汇器是一个三通(管)阀。通过其中导向板的切换可使球进入需要清洗的一侧凝汽器中。它也可作为收球网胶球引出管的汇合和装球管的分流三通管使用。
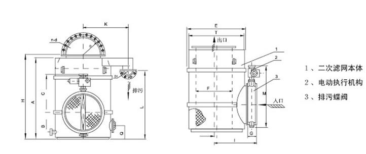
四、二次滤网:
1、概述
二次滤网系统是净化水中污物、保持凝汽器水室经常处于清洁状态,保证胶球正常投运,提高胶球回收率不可缺少的装置。而我国环境较为严重,江河、湖泊等水质污染尤为突出。因此,目前冷却水开式循环系统中较为普遍使用的固定式和旋转负压反冲式两种二次滤网。我厂是生产电力辅机设备定点厂,通过近几年来不断征求广大用户意见和对二次滤网的反复试制及不断改进,二次滤网结构和使用性能更加完善,并广泛应用于火力发电机组冷却水开式循环系统中,受到广大新老客户的一致好评。
2、二次滤网原理
该产品系列为带蝶阀的外旋式二次滤网,冷却水从网芯外部流向内部,利用蝶阀的导向,造成冷却水在二次滤网的外围产生旋转流动,将水中杂物从网芯上冲下并从排污管排出。
五、收球网、二次滤网尺寸选型(仅供参考)
1、二次滤网
 
 
2、手动收球网
 

3、电动收球网
 


上一条:胶球泵
下一条:胶球清洗装置
【返回上页】
联系方式
服务电话:13605137005
邮  箱: gaoda0518@163.com
公司地址:连云港市海州区新坝镇新北路48号
版权所有©连云港高达电力设备有限公司  |信通网络- 连云港网络公司 技术支持  网站管理